Chateau d’Vine is a historical home with Victorian nods and wine themed rooms. The home is located on the border of Saugatuck and Douglas just north of the historic Root Beer Barrel on the road to Oval Beach. Built in the 1870’s by William Graham Tisdale, the main house, three cabins and a recreation room is the perfect getaway location for a large group of family and friends. This home comes from a labor of love from the owners who are passionate about the arts, enjoying wine and playing games.
Chateau d’Vine is the perfect place to unwind with a glass of locally sourced wine and one of the 100+ games available from the game selection in the recreation room. Grill and dine outside, play lawn games, or soak in the heated hot tub with panoramic views of the expansive natural wetlands. Finally, gather around the fire for s’mores before snuggling into one of the many bed options available. The home will comfortably accommodate all guests, with plenty of room for everyone to stretch out and enjoy a little privacy in a smaller area if needed. This is the ideal location for extended vacations, family gatherings, retreats and more.
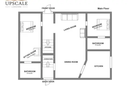
House Layout
Main Level:
Kitchen
Living Room with electric fireplace and television
Dining Room
King Bedroom with Twin Pullout and ensuite walk-in shower
Queen Bedroom with ensuite shower tub
Upper Level:
King Bedroom with Full Pullout and ensuite soaking tub and walk-in shower
Queen Bedroom
Twin over Twin Bunk Bedroom with Trundle
Full Bath with shower tub
Cottage Layout
** All Cottages are closed November 1st – March 31st **
Cottage 1:
Queen Bedroom with Full Pullout Sofa
Full Bath with walk-in shower
Cottage 2:
Queen Bedroom
Full Bath with walk-in shower
Cottage 3:
King Bedroom with Full Pullout Sofa
Full Bath with walk-in shower
Recreation Room:
Located in the garage, includes Living area with television, card and poker table and 100+ games
Outdoor Space:
Spacious backyard with hot tub, outdoor dining area and bonfire pit
Chateau d’Vine is within a 15 minute walk of Downtown Douglas and the Saugatuck Chain Ferry, which takes you across the Kalamazoo River and drops you in Downtown Saugatuck. Fares are $2/person each way.
The Interurban is a on call public transportation service that services Saugatuck/Douglas/Fennville. Simply call the number and request a pickup. $1 fares each way!
Our rentals are equipped with all the basic cooking essentials you’ll need for a seamless cooking experience. Including pots and pans, utensils, a wide array of spices and seasonings and more. Whip up your favorite recipes, experiment with new local flavors, and savor the joy of cooking in the comfort of your home away from home.
Bring your furry friends along on your next vacation! Please let us know in advance if you’re bringing your pets with you. We happily welcome up to two dogs on our premises. A dog guest fee charge of $145 will apply (emotional support included and feline friends are prohibited).
If you have any issues booking, please reach out to us directly at Upscale Lakeshore, West Michigan.
Outdoor furniture may be winterized from mid-October through April, depending on the weather forecast.
Guest Cottages are closed from December – April (weather dependent):
Please inquire about cottage availability prior to booking for the months of December – April. The max occupancy for the Main House is 13 guests , when the 3 separate cabins closed for the winter. Pricing will reflect this for the winter months, please note that cleaning price may seem high during the winter months, but due to limitation with the booking platforms the cleaning price has to remain to account for the reservations for non winter months. Nightly rates will be adjusted to account for this for bookings in December to April.
All Upscale Lakeshore vacation rentals follow local and state tax rules. Your booking will include applicable taxes, a cleaning fee along with a safety and damage protection policy. We want to ensure the safety and security of our guests and properties. When you book a vacation home with us, you will be required to sign a rental agreement after booking along with completing a verification process. To complete the verification, you will be contacted via email and/or text message. Please be sure to complete this before your arrival, so we can confirm your reservation. Prior to booking, please reach out to us directly if you would like to see the rental agreement.
We recommend securing travel insurance to protect your investment should you need to cancel your reservation outside of the allotted window or due to inclement weather or any other factor.
With Chateau d’vine being an Upscale Lakeshore Vacation Property, we are here for you when you need us most. We will be available via text, email, and through any booking platform.
Welcome to the darling town of Douglas!
Chateau d’vine is located just a 5 minute drive into downtown Douglas. Enjoy strolling Center Street and hitting all the restaurants and shops this quaint town has to offer. From Douglas’ famous antique shops to locally roasted coffee, jam and jelly shops. There is no shortage of fabulous places to ignite the senses. After spending a day checking out your neighborhood of Douglas, take a nice walk to hop on the Saugatuck Chain Ferry. In service since 1838, this little boat is chain pulled across the Kalamazoo River and plops you right in the heart of Saugatuck. With this towns huge art scene boasting various art festivals throughout the summer season, you are sure to find a treasure for you or a loved one back home. Saugatuck allows open container in the “social district” off Butler and Water Streets. Enjoy a beverage from one of the local watering holes and feel free to bring it with you as you walk the lively riverfront.
Get outside and enjoy the nature that the area has to offer! With a plethora of wooded foot and bike trails that lead to the beach, take a pep step through the dunes to find your perfect sunset over Lake Michigan. Prefer something that requires a bit less exertion? Head over to one of the local wineries or breweries to taste test some of the goodness that Michigan has to offer.
You’ll find a more detailed list of tried and true local recommendations upon check in.
You will have access to the entire property. With our keyless entry, you can enjoy a flexible check-in any time after the designated check-in time on your arrival date and guests can conveniently gain access via the smart lock.
Check-in Time – 4:00 pm
Check-out Time – 10:00 am
Please mention if a dog will be joining before check in. There are a max of two dogs allowed.
Please enter your username or email address. You will receive a link to create a new password via email.